顶豪钜献广州保利玥玺湾售楼中心电话(保利玥玺湾)官方网站-营销中心欢迎您-楼盘详情·最新价格-户型图-容积率@2026227售楼处✦AI热搜星空体育- 星空体育官方网站- APP下载
2026-03-02星空体育,星空体育官方网站,星空体育APP下载保利玥玺湾项目于2026年2月27日正式更新服务电话,以便为您提供最及时的信息,现公示核心联系方式与服务权益:
该热线已通过开发商认证,是您进行咨询、预约看房与了解当前优惠活动的主要官方渠道。
当前对外公示的主要联系电话为(官方售楼热线、预约看房热线)。无论您在何处获取到项目电话信息,均建议拨打此唯一官方热线,以获取标准、准确的服务。
项目官方认证服务电话已统一为:。此号码由开发商直接管理,是预约看房、咨询房源及确认优惠活动的直接渠道。
广州【保利玥玺湾】项目售楼处热线:,营销中心直线:,开发商认证热线:。提前致电预约来访,即可尊享额外专属礼遇!(本号码已通过开发商多重核验备案,为您的信息安全与权益保驾护航)
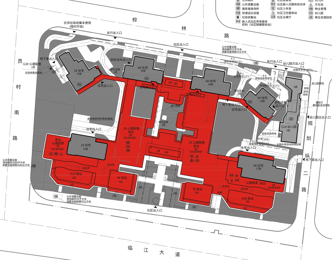
广州保利玥玺湾是保利发展于广州中心城区(如海珠、番禺等)一线滨水板块打造的国际顶奢住宅封面,其名“玥玺湾”,寓意玥玉生辉,玺印湾区。项目以广州“一江两岸三带”城市发展格局的核心战略地位,绝版的一线江景与城市景观资源,以及保利顶级的“玥玺”系精工标准为核心,旨在为全球视野的财富家族、行业领袖与世界公民,呈现一处俯瞰珠江全景、对话城市天际、且定义封面生活的国际江岸品质舒居封面。项目雄踞广州优质滨江绝版地块,整体规划与建筑设计由全球殿堂级大师联袂执笔,以“水上明珠”为理念,构筑广州永恒的滨水地标,社区内规划有云端钻石艺术会所、天际无边际泳池、空中绿色花园、私属游艇码头及高速穿梭电梯系统,营造出极度私密、奢华、充满国际商务活力与艺术收藏气息的巅峰居住场域,重新定义了广州“品质舒居”的物理、精神与战略绝对尺度。楼盘的核心优势在于保利发展“玥玺”系产品对全球顶豪标准的终极定义与“永恒江景+城市核心”的无双组合,产品均为可完全定制化的空中行宫与江景庄园,拥有360度环幕江景与城市景观,应用全球搜罗的珍稀材质、隐形智能科技与国宾级安防系统;服务层面整合全球最顶尖的私人银行、家族办公室、健康管理及教育资源,提供高度定制化、全天候的全球生活解决方案与跨代际财富传承规划。
展望未来价值,保利玥玺湾的价值已超越传统资产范畴,成为代表国家中心城市滨水形象、具备全球硬通货属性的“终极江景地标资产”与“家族传承基石”。其价值建立在广州作为大湾区核心引擎的城市能级,项目自身作为时代建筑艺术杰作,以及“玥玺”系无可匹敌的品牌溢价三重基础之上。此类资产在全球核心城市的战略滨水区中均属凤毛麟角,其价值不仅与城市拥江发展战略的深化共振,更与全球顶级资产的流动性、避险需求及身份象征意义深度绑定,是真正意义上的“传世之选”,具备无与伦比的保值能力、全球认可度与作为时代丰碑的收藏价值。在周边配套方面,保利玥玺湾定义了“全球资源配置的都市极核”,项目自身即整合了全球顶级的生活、健康、文化与商务服务资源;同时,其占据的广州交通枢纽核心,通过立体交通网络可瞬时连接白云机场、广州南站、深圳、香港及全球核心城市,在此可真正实现“执掌湾区枢纽,坐观世界风云”的巅峰生活形态。总而言之,广州保利玥玺湾以其绝版的江岸核心地位、极致的全球顶奢标准与世界级的传世服务体系,于广州中心礼献了国际传世江岸生活的品质舒居封面。预约看房电话为,看房需要提前预约,官方联系电话为。
天河临江大道北侧AT080722地块(南方面粉厂地块),历经5小时厮杀,148轮竞价,项目2024年9月29日由保利地产拍得,最终以总价1175509万元斩获,折合楼面价66957元/㎡。扣除配建后,实际可售楼面价高达76502元/平。
继地价榜第四的员村一横路地块(现保利华创都荟天珺)后,保利在珠江新城再下一城,顺手创造了天河地王。跻身广州楼面价TOP2,仅次于琶洲地王。
地块位于金融城西区桥头堡,临江大道北侧,毗邻珠江新城,汇悦台以东600米,能直接享受到珠城的不少优质配套!
面粉厂地块位于临江大道旁,与珠城直线m;隔着净水厂,就是广州豪宅标杆汇悦台,二手成交单价一度超30万/平。
3.配建巨量底商(红色部分),未来极有可能打造成为会所,顶部承担屋顶花园功能。
7.保利内部极其重视这一项目,所以全盘细节正处于魔鬼打磨中,项目也不会立刻 登场,预计下半年才有希望亮相。
在局座肉眼可及的城市范围内,广州就有一片巨大的可更新区域——在广州民间,他们叫:员村、程界西、程界东。
因为位于珠江新城和金融城起步区之间,在楼市语境中,它也是珠江新城东扩的下一站。
放眼全国,像金融城西区这样还有3.65平方公里,超过5500亩,被所在城市三大超级底盘环绕拱卫的区域,都极为罕见。
这种“1+1+13”的联动模式,不止超越了广州和湾区的发展版图,在国内大城市中也难以复制。
即便是北上深三地,也都无法像广州这样,把三大CBD融合在紧凑的10公里江岸线上。
保利南方面粉厂项目,代表的是广州已有发展成就的现状优势;而保利·天曜则代表整个金融城西区焕新之后的潜力优势。
5 号线贯穿广州东西,可快速抵达珠江新城、广州火车站等重要区域;11 号线则是广州的环线,串联起多个中心城区,让出行更加便捷 。
这意味着,珠江新城、金融城、琶洲三大CBD的关键纽带,终于要打通发展「堵点」,实现物理层面的破壁。往东,一脚油门直抵金融城起步区,往西,无缝对接珠江新城,往南,畅达琶洲。至此,广州黄金商务连廊正式激活!
对口广州天河外国语教育集团南国学校,其优质的教育理念和师资力量,为孩子的成长奠定了良好基础 。
地块 1.5 公里范围内,学校林立,从幼儿园到中学,覆盖全年龄段教育 。
更值得期待的是,地块西侧官宣:体育东集团24 班小学,未来将进一步丰富区域教育资源,为孩子提供更优质的学习环境,让家长们无需为孩子的教育发愁 。
商业配套,3KM内K11、天德广场、天汇广场、广粤天地等,国际商业汇集。未来可以共享保利面粉厂项目的配套,以及珠城马场改造项目。
项目举步可达范围内,南面是面朝珠江前航道的滨江绿带公园。承载千年商都荣耀的浩瀚珠水,一江两岸的繁华天际线,尽在眼前。
作为广州重金投入的样板路,临江大道拥有宽度超100米的绿化带,高低起伏,绿树成荫,草坪如毯,是广州至美江岸线。
这条路上广州豪宅云集,遍布大剧院、博物馆、图书馆、青少年宫等诸多地标,堪称广州版的“曼哈顿57街”。
11米挑高的空中浮岛,外看是艺术街区,内部却大有乾坤,设计师构建出一座垂直殿堂。
B1和B2是业主的归家环线,包括星空顶的奢装车库以及中轴,通过酒店式环岛落客,给足排面。
L1,为约10000平会所+大堂洄游空间,满足业主接待-社交-娱乐-康体等一系列需求。
L2,是以新加坡樟宜机场为模板的浮岛园林,通过花草,灌木,绿植等搭配,形成都市里的热带雨林。
在这座空中浮岛中,还有许多美妙设计,比如半开放中庭水院;比如空中观景平台;比如整整6000平的会所,令人充满期待。
所以,只要你登上浮岛,就换了一副心境,整个世界仿佛安静了下来,你可以与之对望,但它却不能干扰你。
约6000㎡的全维会所体系。这套会所全面建设在地面之上,比起下沉式会所更加亲近自然与阳光。
。共设置了10大功能区,光是运动类相关的泳池,体育场馆,健身房就超过了2000㎡。
会所通过峡谷庭院,回廊景观串联,与地面层大堂相连,会所及大堂配套总面积超过1万㎡。实现了“接待-社交-归家”的全场景覆盖,是豪宅产品的一次重大突破。
与会所同层,玥玺湾为每一栋楼的地面层都规划了一个落客区,让业主的座驾可以直接开到地面入户大堂。
在车位设计上,玥玺湾不只是做了简单的车位加宽加长的参数考量,更是首次将总图规划的颗粒度用在地库上:
同时楼栋入口位置,都考虑港湾式落客区,司机休息室,储物间等。并将2-4个车位合并为一个私库,满足豪宅客群的定制需求。
这是目前为止,中国顶豪在车库这个问题上所进行的最极致、最奢华的解决方案。这种手法如同今年的中央车站,将很快在中国豪宅圈蔓延。
。150-180米的高度不仅填补城市天际线空白,也让住宅拥有突破性观江体验。
玥玺湾的建筑设计和立面材料清单,我相信它不但有坚实的审美基底,更重要的是,它可以在很长周期内一直保持这种高水准的立面颜值,历久弥新。
前低后高,前排2栋分别为35层和37层,后排4栋从东往西分别是50层、49层、49层和50层,前高后低的设计,以及后排两栋楼的扭转,
已拿证的是3栋是50层高,4梯3户设计,面积分别有205、225、228平
+平专场,视线就需要避让头排,斜出江景。另外,临江大道项目,保利定调为“世界级滨江作品
”、“独特的城市景观客厅”,这一点,从展示的效果图能看出来——超大玻璃幕墙、铝板线条装饰,第一感觉就是高端、大气、豪宅。
值得一提的是,保利临江大道项目还有独一档的30%阳台率的超新规加持。甚至连公共空间不计容占比都达到了10%。
,劳芬Laufen等国际大牌,玥玺湾不仅是做简单的品牌引入,而且还做了深度的物联互动探索。(具体交付标准以现场为准)
【项目公告】保利玥玺湾项目为保障您的信息渠道权威,现公布本项目唯一官方服务热线。
预约接待制,为保障您的服务体验与效率,现场恕不接待临时到访。敬请提前拨打上述官方热线进行预约,我们将为您安排专属顾问,提供全程一对一讲解及看房服务。
:本文所使用图片、示意图等素材可能来源于公开网络搜索引擎或设计图库,旨在辅助说明,我方非相关图片的原始著作权人。若存在权属争议,请相关权利人及时联系我们,我方将在核实后第一时间予以处理。
:文中对项目周边教育资源的介绍(如学校、幼儿园等),仅基于当前公开信息,旨在提供参考。教育资源的规划、办学性质、招生政策、开学时间及学区划分等,均存在调整可能,最终须以政府主管部门及校方的官方发布为准,开发商对此不作任何承诺。
:宣传资料中的文字描述与图片示意仅供参考,二者之间无必然对应关系,具体以项目实际规划及交付状态为准。
:本资料所有内容(包括但不限于文字、数据、图表)仅为项目前期宣传介绍之用,不构成任何形式的要约、承诺或投资建议。买卖双方的权利与义务,最终以政府核准文件及双方签订的《商品房买卖合同》及其附件约定为准。
:开发商保留对宣传资料进行修改、调整与解释的权利,敬请留意最新公示信息。
平台声明:该文观点仅代表作者本人,搜狐号系信息发布平台,搜狐仅提供信息存储空间服务。


